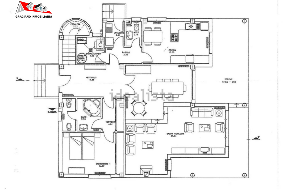
*Cuenta con un terreno de unos 800 m² que se compone de una vivienda de 2 plantas de 240 m² construidos y 200 m² útiles.
*La vivienda se distribuye en:
Planta baja - salón-comedor abierto con chimenea, techos altos y vigas de madera. Salida a una bonita terraza con vistas a la piscina. Cocina independiente totalmente amueblada y equipada con puerta de salida a la terraza. Un dormitorio principal con un gran armario empotrado y un cuarto de baño tipo suite con bañera redonda. Un aseo, un cuarto de caldera y un cuarto de lavadora.
Primera planta - Subiendo las escaleras nos encontramos con un tragaluz y un hall donde se distribuyen, 4 dormitorios con armarios empotrados, 2 con vistas a la piscina y otros dos a la calle principal y un cuarto de baño amplio con ducha.
*Además dispone de calefacción de gasoil, aire acondicionado (frio-calor) por toda la vivienda, suelo de gres rústico, paredes lisas, ventanas de climalit y puertas de madera maciza.
*Garaje para dos coches con puerta automática, piscina en patio trasero con cesped artificial, zona de barbacoa, horno moruno y barra de bar.
*Porche descubierto tipo chill out para desconectar y disfrutar con amigos.
Precio: 490.000€, negociables.
Honorarios de inmobiliaria no incluidos.